projects > residential and hotels > Hotel "Reitoral de Parada"
Hotel "Reitoral de Parada"
Reference Date: 2019
Reference:a258
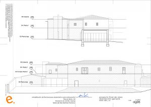
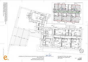
Description: Hotel "Reitoral de Parada"
Client: Reitoral de Parada
Bult Area: 846,5m2
Material Cost: 410.137€
Construction Cost: 488.063,03€
Location:Badajoz, España
Reference:a258
Description: Hotel "Reitoral de Parada"
Client: Reitoral de Parada
Bult Area: 846,5m2
Material Cost: 410.137€
Construction Cost: 488.063,03€
Location:Badajoz, España
