projects > educational > Secondary Education Institute in Montánchez
Educational - 2010, a149, Secondary Education Institute in Montánchez
REFERENCE DATE: 2009
REFEERENCE: a149
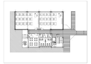
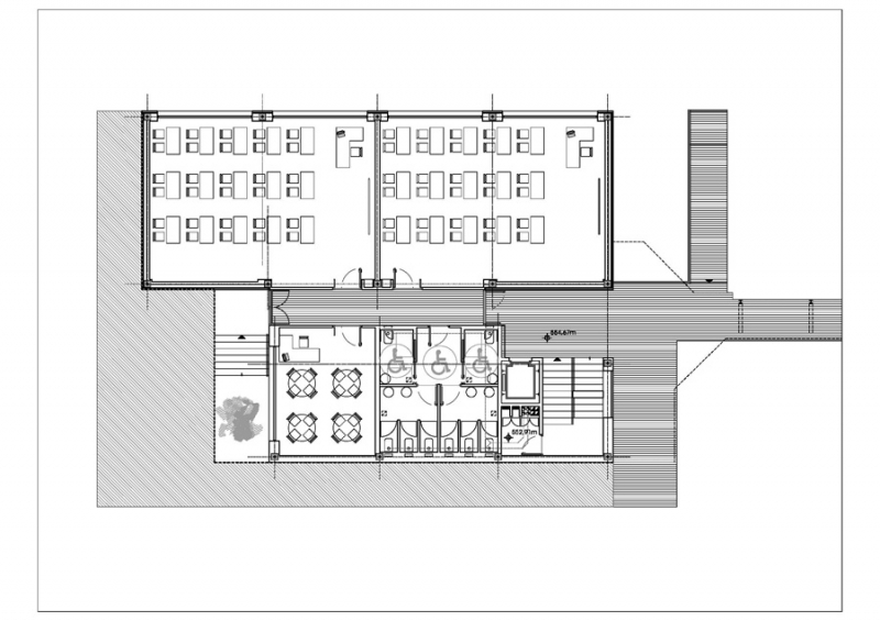
DESCRIPTION: Secondary Education Institute "Sierra de Montánchez"
CLIENT: Extremadura Government
BUILT AREA [m2]: 859,57
MATERIAL COST [€]: 605.260,82€
CONSTRUCTION COST [€]: 720.260,37€
LOCATION: Av. de Extremadura, 1, 10170 Montánchez, Cáceres, España
REFEERENCE: a149
DESCRIPTION: Secondary Education Institute "Sierra de Montánchez"
CLIENT: Extremadura Government
BUILT AREA [m2]: 859,57
MATERIAL COST [€]: 605.260,82€
CONSTRUCTION COST [€]: 720.260,37€
LOCATION: Av. de Extremadura, 1, 10170 Montánchez, Cáceres, España
